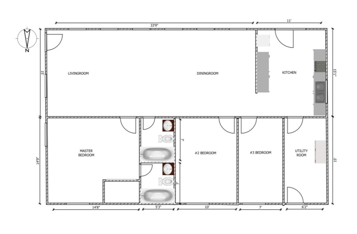
Add to FavoritesListing ID : 26672
13 acres juniper trees and other natural vegetation
Green propane style roof

11 large south facing windows with two foot overhang to shade in summer
Where was this used? Walls
Output: 10000watts
Year installed: 2025
33- solar panels, 3- FM80 Outback charge controllers, 20kw peak inverter

Glazing: Dual-Paned Windows
Installed Appliances: N/A
Air Sealed: No
Tankless Water Heater Installed: YesInstallation Year: 2025
Water Purity: no
Air Purity: no
Radon Test Date: ,
Wall Finishes: Plaster, Low VOC Paint
| Gas | $200 |
| Wood | $300 |
Listing ID : 26672